• Home
  • Work
  • History
    • Career
    • Projects
  • About
  •  

Hamish Thain ©

Catskills Passive House

Buildings are the largest contributors to global emissions.

This statement got me thinking.

I had spent 20 years working for clients trying to make their consumer products as sustainable as possible, but the margins for change were so small compared with construction.

Farmhouse

Plot - Click to Expand

Placement with topo

Closeup

For the last 10 years I have been learning about high performance buildings, materials & constructions.

The passive house is the current gold standard and uses 75% less energy than code.

To me it seems ridiculous that this much energy is currently allowed to be left on the table while we are in the midst of a climate crisis.

Prefab Panels from GO Logic

I worked with GO Logic of Belfast, ME to develop a panelized construction.

Utilizing their patented frost-proof slab on grade foundation & their offset double wall system, to create a tight & efficient envelope.

Wall Detail - Click to Expand

Roof Detail - Click to Expand

Slab Detail - Click to Expand

Working with a local engineering firm, I developed the wastewater plans.

I created plans for the electrical & communications systems along with the rooftop solar & backup power.

Electrical Service

Solar

Septic Plan

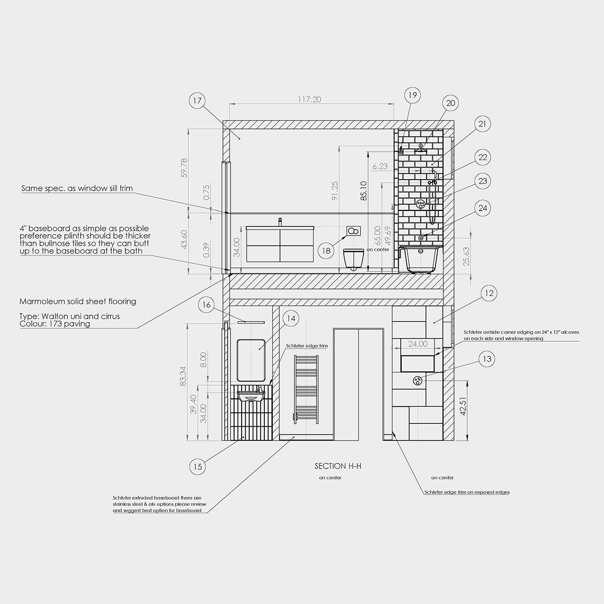
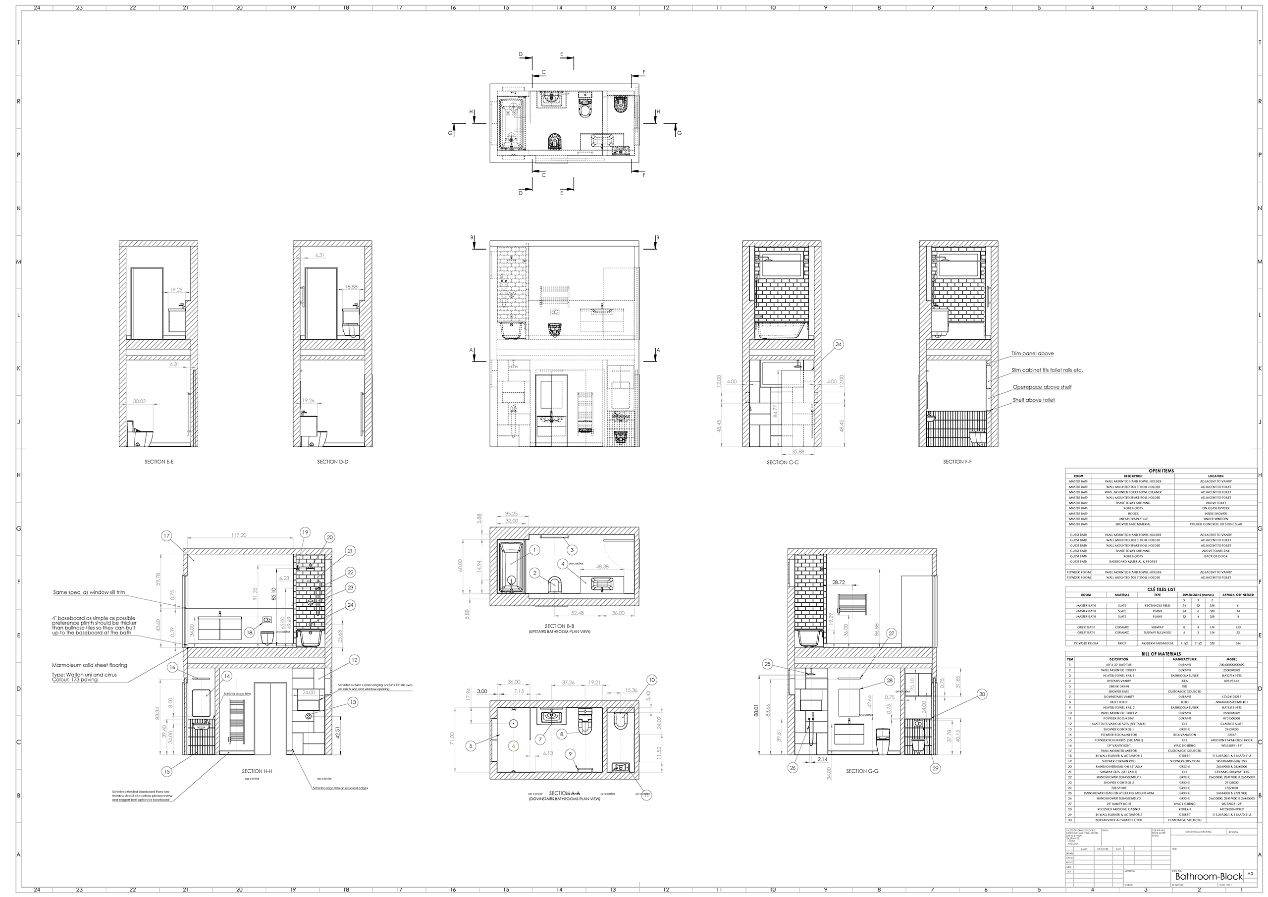
I was responsible for designing the details inside the house including built-ins, bathrooms and case goods.

Entry Closet

Dining Area

Reveal bead detail

Media built-in

Bathroom details - Click to Expand

Built-in details

Built-in details

Entry Shelf

Value Engineering

Kitchen

By 2022 the project had become extremely expensive & I was finding it hard to find local a GC that wanted to work with the prefab envelope.

Material Swatches for GC

It became clear that I would have to take on the project & be the builder.

We had a 1yr old, plus a baby on the way, it was not the right time for this project. So we pumped the brakes.

Old farm wall on the land

In hindsight I am glad we delayed because I have learned even more about construction & have started to focus on the embodied carbon of new buildings.

I realized that there is a balance to be struck between embodied carbon, overall efficiency & final cost.

There are many notches between current code & passive house standards that can be exploited to develop affordable efficient housing.